Skip main navigation
Home    
   NOAA GLERL header  

 

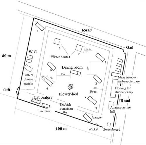
The field station is located on the 0,8 hectare area at the bank of Shira lake.


The plan of Shira Lake field station

The infrastructure of the field station includes:
•  6 living summer trailers (three winter houses under construction);
•  new laboratory building equipped for field biology (including controlled environment room);
•  garage trailer;
•  kitchen with verandah (you are welcome to cook any kind of food as well as organize seminars at the open verandah);
•  sauna with showers.

Technical equipment includes:
•  off-road vehicle to transport the boat,
•  motorboat equipped with navigation system (GPS), depth echo sounder and surface temperature sensor,
•  rubber boat used on smaller lakes.

Scientific equipment includes:
•  various water and sediment samplers,

     

•  multi-channel DataSonde ( Hydrolab , USA ) with temperature, depth, Ph, Eh, salinity, oxygen concentration, turbidity and total dissolved gas meters,

 

•  Underwater LiCor meter of solar radiation
•  Underwater video recording system
•  other basic scientific equipment and consumables for hydrobiological research. Scientists utilizing the field station also provide various scientific equipment and consumables. Specific equipment can be provided upon request from the Institute of Biophysics . Water samples can be transported to the Institute of Biophysics for detailed chemical analyses.

 

   

The short and medium term use of the field station include:
•  scientific research on various fundamental and applied questions;
•  summer courses and practices for graduate and postgraduate students both from the region ( Krasnoyarsk and Abakan State Universities ) and from other countries;
•  Organization of international summer school "Salt lake ecosystems structure and functioning".

 







 


Main | Why should we study salt lakes? | Infrastructure and equipment | Lakes | Research | People | Results | Contacts

The development of the infrastructure of the Field station is supported by INTAS Infrastructure action (grant No. 03-59-78)
and special program of the Presidium of Siberian Branch of Russia an Academy of Sciences.
 

Akademgorodok 660036 Krasnoyarsk, Russia
Phone: (3912) 431579 Fax: (3912) 433400
e-mail: ibp@ibp.ru         
webmaster: maxim@ibp.ru
http://www.ibp.ru